Oliver Chandler Estate Agents in Salisbury

Saddlers Mead, Salisbury

Guide price £400,000

3 1 4

About the property


***WATCH THE VIDEO TOUR***NO ONWARD CHAIN***

Welcome to Saddlers Mead, positioned at the end of a quiet residential cul-de-sac, this extended detached home offers generous and versatile accommodation, occupying one of the largest plots within Saddlers Mead. With beautifully maintained gardens on three sides, ample driveway parking, and an attached garage, this property is ideally suited for families or purchasers seeking a well-appointed home in a sought-after setting.

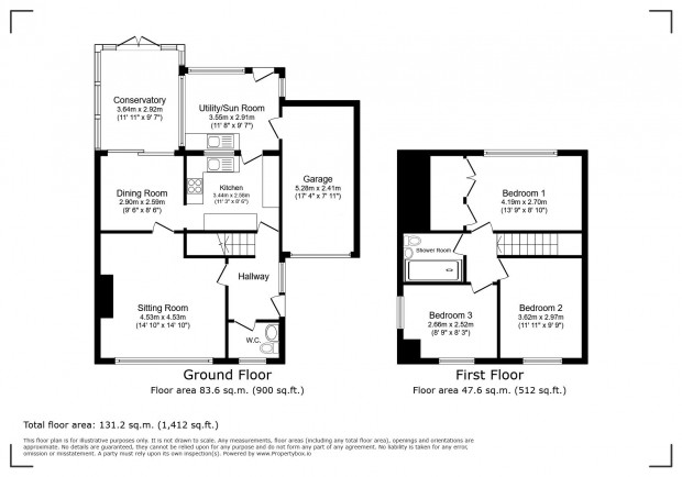
Internally, the property comprises an entrance hall with side window, understairs storage, and access to a ground floor cloakroom with WC and wash basin. The principal reception room enjoys a large front-facing window with a westerly aspect, offering abundant natural light and a welcoming ambiance. A connecting door leads to the dining room, which in turn opens through to a glazed conservatory, an excellent additional living space with views over and access to the rear garden. The kitchen is fitted with a range of base and wall-mounted units with roll-edge work surfaces and tiled splashbacks. A stainless-steel sink is positioned under a rear-facing window, with space provided for a freestanding electric cooker and fridge. A breakfast bar offers casual dining, and a part-glazed door opens to a practical sunroom/utility area with additional sink, fitted storage, and plumbing for white goods. The sunroom also provides internal access to the garage and an external door to the rear garden.

On the first floor, the accommodation continues with three well-proportioned bedrooms and a contemporary shower room. The principal bedroom overlooks the rear garden and benefits from a wall of built-in wardrobes. Bedroom two faces the front of the property, while the third bedroom enjoys dual-aspect windows to the front and side. The shower room is fully fitted with a modern suite, including a walk-in shower, wash hand basin with vanity unit, WC, heated towel rail, and part-tiled walls.

Externally, the property is set within established gardens that extend to the front, side, and rear, incorporating areas of lawn, gravel, and patio ideal for outdoor entertaining. A timber summerhouse and storage shed are also included. The driveway provides generous off-road parking in addition to the single garage, which benefits from power, lighting, and an up-and-over door.

The property is conveniently located within walking distance of Wilton town centre, which offers a wide range of local amenities, including shops, cafes a weekly market, and schools. Salisbury city centre is approximately three miles to the east, accessible by a regular bus service.

Location

The property is located in this popular residential cul-de-sac within a level walk of the town centre where there are a number of amenities including a Doctors surgery, shops, public houses and bus services to and from Salisbury. The properties in the cul-de-sac also enjoy the shared ownership of adjoining meadow land bordering the River Nadder to where there are fishing rights. Salisbury, about 3 miles distance, has a wider range of amenities including a main line railway station with connections to London Waterloo.

Services

The property is connected to mains services.

Material Information

Under current legislation, as set out in the Consumer Protection from Unfair Trading Regulations 2008, estate and letting agents have a legal obligation not to omit material information from property listings. Part A: - Price, tenure, and council tax. (Included) Part B: - Physical characteristics, number of rooms, utilities, and parking. (Included) Part C: - • Building safety, e.g., unsafe cladding, asbestos, risk of collapse - we understand the property is safe. • Restrictions, e.g. conservation area, listed building status, tree preservation order - we are not aware of any restriction in this regard. • Rights and easements, e.g. public rights of way, shared drives - we are not aware of any rights of access. • Flood risk - We understand the property is not in a flood risk area. • Coastal erosion risk - we understand the property is not at risk of coastal erosion. • Planning permission – for the property itself and its immediate locality - we are not aware of any nearby planning permissions. • Accessibility/adaptations, e.g. step-free access, wet room, essential living accommodation on entrance level - step-free access is currently viable at this property. • Coalfield or mining area - We understand the property is not in a mining area.

Directions

Leaving Salisbury on the A36 towards Wilton at the roundabout turn left into Wilton. At the cross roads by the traffic lights continue straight across onto West Street. Follow the road around to the left and continue up the road. At the mini roundabout turn left into Saddlers Mead.

Agent's Note

All 27 residents of Saddlers Mead own a share of the meadow land with river frontage on to the Nadder with fishing rights. This is private land and only for the use of by the residents. The current fee is £155 per annum for the upkeep to the meadow land which covers general maintenance and lawn mowing etc.

Property features

  • ***WATCH THE VIDEO TOUR***
  • ***NO ONWARD CHAIN***
  • Detached Three-Bedroom House
  • Well Proportioned Accommodation
  • Garage & Driveway
  • Beautiful Gardens
  • Share of Water Meadow
  • Council Tax Band E

Details

Floor plans

Property Location

Looking to sell?

Looking to buy, sell, rent or let a property in Salisbury and the surrounding area?

Why not trust the team whose business has grown almost exclusively through recommendation and referral? For help and advice or just a friendly, confidential and no obligation chat about your requirements, simply:

Contact Us Today