Oliver Chandler Estate Agents in Salisbury

Charnwood Road, Salisbury

Guide price £197,500

1 1 1

About the property


***WATCH THE VIDEO TOUR***

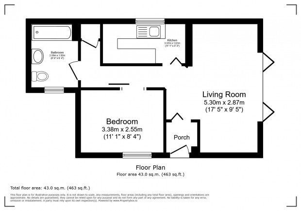
Welcome to Charnwood Road, tucked away along a peaceful, secluded lane, this unique one-bedroom bungalow offers a rare combination of privacy, quality finish, and charming outdoor space. Immaculately presented throughout, the home is designed with comfort and style in mind, and enjoys direct access to beautifully maintained communal gardens. With off-road parking for two vehicles and a contemporary interior, this is a perfect home for those seeking an easy, elegant lifestyle in a quiet yet convenient location.

Inside the home step into a welcoming entrance hall, laid with tiled flooring and underfloor heating, a warm and practical touch that continues through much of the property. From here, a glazed door leads into the heart of the home. The living room is a stunning, south-facing space flooded with natural light thanks to triple-glazed bi-folding doors that open directly onto the communal gardens. Oak flooring, a free-standing wood-burning stove, and ample room for both seating and dining create a beautifully inviting space for relaxation or entertaining.

The kitchen is stylish and well-equipped, featuring modern units with granite effect worktops, a stainless-steel sink, electric cooker with hood and space for a washing machine, full-height fridge/freezer and dishwasher. Tiled flooring with underfloor heating and spot lighting completes this sleek and functional space. An inner hallway offers additional storage and connects the main living area to the rest of the home.

The double bedroom is bright and comfortable, with a triple glazed window, oak flooring, and space for freestanding or built-in wardrobes. The contemporary bathroom is finished to a high standard, with a white suite comprising a panelled bath with overhead electric shower and screen, wash basin with vanity storage, and WC. Further features include underfloor heating, part-tiled walls, a chrome heated towel rail, and a window.

To the front, a gravelled driveway provides off-road parking for two vehicles. To the rear, the property opens out onto a beautifully landscaped communal garden, shared with just two neighbouring homes. A real highlight, the garden offers an oasis of calm, ideal for enjoying a morning coffee or unwinding in the sunshine.

Additional benefits include access to a communal cellar for storage and a bike shed.

This delightful property blends quality finishes, practical features, and a peaceful location, all within easy reach of local amenities. An ideal home for professionals, downsizers, or anyone seeking a tranquil retreat with a touch of luxury.

Location

The property is conveniently positioned to benefit from the nearby convenience stores and take-aways and is within a mile of the Salisbury city centre which offers a range of further amenities. These include, but are not limited to, supermarkets, high-street shops, bi-weekly markets, copious restaurants, pubs & bars, a theatre, the arts centre, a cinema and renowned state and private schools. These include Bishop Wordsworth's School, South Wilts Grammar School, Godolphin School, and Leehurst Swan. There is also Manor Fields Primary School within a close distance. Leisure and recreational facilities include the very nearby Five Rivers Leisure Centre, private members gymnasiums, a golf club, and recreation grounds. Salisbury train station is within a ten-minute walk and offers direct commuter links to London Waterloo and the West Country. Additionally, Salisbury is well-positioned to offer great road links to the coastal cities of Southampton and Bournemouth, as well as routes into the New Forest.

Directions

Leave Salisbury via Fisherton Street and at St Paul's roundabout take the first exit onto Wilton Road, the A36. Continue past the court house, Charnwood Road is located on the left hand side opposite the college. Continue to the end of Charnwood Road and you will see a private road to the right of Charnwood House. Proceed along here and the property will be found on the left hand side.

Services

The property is connected to mains water, drains and electricity and benefits from Solar panels and wood burning stove.

Material Information

Under current legislation, as set out in the Consumer Protection from Unfair Trading Regulations 2008, estate and letting agents have a legal obligation not to omit material information from property listings. Part A: - Price, tenure, and council tax. (Included) Part B: - Physical characteristics, number of rooms, utilities, and parking. (Included) Part C: - • Building safety, e.g., unsafe cladding, asbestos, risk of collapse - we understand the property is safe. • Restrictions, e.g. conservation area, listed building status, tree preservation order - we are not aware of any restriction in this regard. • Rights and easements, e.g. public rights of way, shared drives - we are not aware of any rights of access. Charnwood road is unadopted, and maintained by all residents of Charnwood road. • Flood risk - We understand the property is not in a flood risk area. • Coastal erosion risk - we understand the property is not at risk of coastal erosion. • Planning permission – for the property itself and its immediate locality - we are not aware of any nearby planning permissions. • Accessibility/adaptations, e.g. step-free access, wet room, essential living accommodation on entrance level - step-free access is available. • Coalfield or mining area - We understand the property is not in a mining area.

Lease

The property is a leasehold, with 89 years remaining on the lease, (125 years from 1989). The ground rent and service charge is £70 a month.

Property features

  • ***WATCH THE VIDEO TOUR***
  • One-Bedroom Bungalow
  • Living Room with Bi-Fold Doors Overlooking Gardens
  • Off Street Driveway Parking
  • Solar Panels
  • Beautifully Decorated
  • Quiet Residential Area
  • Council Tax Band B

Details

Floor plans

Property Location

Looking to sell?

Looking to buy, sell, rent or let a property in Salisbury and the surrounding area?

Why not trust the team whose business has grown almost exclusively through recommendation and referral? For help and advice or just a friendly, confidential and no obligation chat about your requirements, simply:

Contact Us Today